Increasing the size of your kitchen during a home renovation can significantly enhance the functionality and aesthetic appeal of your home.
Assessing Your Needs
- Evaluate Your Current Kitchen: Identify the limitations and inefficiencies of your current kitchen.
- Determine Your Needs: Consider your cooking habits, storage requirements, and entertainment needs.
- Measure Your Space: Accurately measure your kitchen area to determine the potential for expansion.
Design Considerations
- Remove Walls: Consider removing walls to create an open plan kitchen, dining, and living area.
- Bump-Outs: Add a bump-out or a small extension to increase kitchen space.
- Rearrange Layout: Optimize your kitchen layout to create more space for cooking, storage, and movement.
- Vertical Space: Make the most of vertical space by installing tall cabinets or shelves.
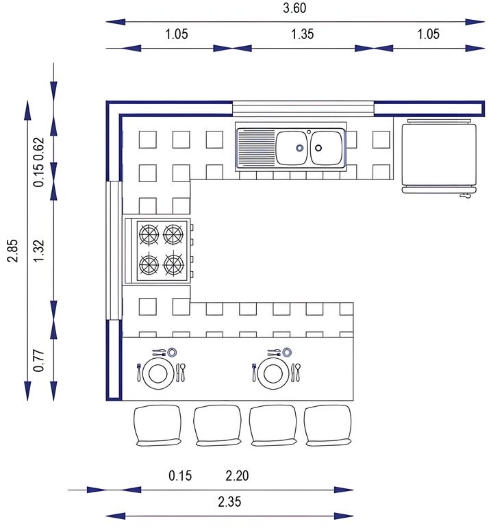
Popular Kitchen Layouts
- L-Shape: Suitable for small to medium-sized kitchens, L-shape layouts provide ample counter space and efficient workflow.
- U-Shape: Ideal for larger kitchens, U-shape layouts offer ample storage and counter space.
- Island Layout: Add a kitchen island to increase counter space, storage, and seating.
Tips for Increasing Kitchen Size
- Use Light Colors: Light colors can make your kitchen appear larger and more spacious.
- Minimize Clutter: Keep your kitchen clutter-free to create a sense of openness and flow.
- Optimize Storage: Invest in efficient storage solutions, such as pull-out shelves and drawers, to maximize your kitchen’s storage capacity.
- Consider a Kitchen Peninsula: A kitchen peninsula can provide additional counter space, storage, and seating.
Benefits of a Larger Kitchen
- Improved Functionality: A larger kitchen provides more space for cooking, storage, and movement.
- Enhanced Entertaining: A spacious kitchen is perfect for hosting dinner parties and social gatherings.
- Increased Property Value: A well-designed and spacious kitchen can significantly increase your property’s value.
Challenges and Considerations
- Structural Changes: Increasing kitchen size may require structural changes, such as removing walls or adding extensions.
- Budget: Expanding your kitchen can be costly, so it’s essential to set a realistic budget and prioritize your needs.
- Permits and Regulations: Ensure that you comply with local building codes, permits, and regulations



